CENA ZA MIESZKANIE W STANIE DEWELOPERSKIM: 450 00,00 ZŁ
CENA Z MIEJSCEM POSTOJOWYM: 470 000,00 ZŁ
Mam przyjemność zaprezentować widokowe mieszkanie zlokalizowane w kameralnej inwestycji w cichej, spokojnej części Wilkowic.
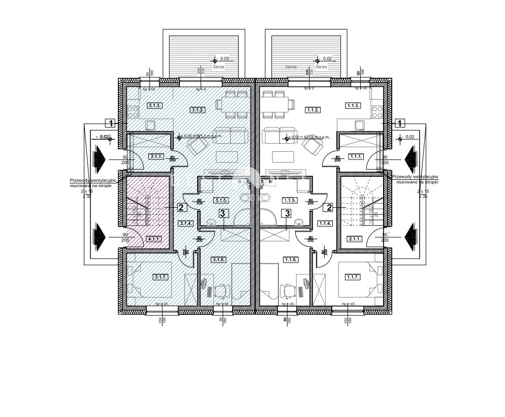
Przedmiotem oferty jest mieszkanie znajdujące się na parterze o powierzchni całkowitej 48,62 m2 z przynależnym ogródkiem.
Lokalizacja oferuje również liczne punkty usługowe oraz handlowe. W sąsiedztwie jednorodzinna zabudowa, przystanki autobusowe. Szybki dojazd do centrum miasta bądź na drogi wylotowe.
RYNEK PIERWOTNY - BRAK PODATKU PCC 2%!
Lokal sprzedawany w stanie deweloperskim.
Przynależne 1 MIEJSCE POSTOJOWE za dodatkową opłatą - 20 tyś zł.
Zakończona budowa!
UKŁAD POMIESZCZEŃ:
- Wiatrołap - 3,62 m2;
- Pokój dzienny z jadalnią - 14,90 m2 - z wyjściem na taras;
- Kuchnia - 4,55 m2;
- Komunikacja - 3,90 m2;
- Łazienka 5,02 m2;
- Pokój - 8,55 m2;
- Pokój - 8,08 m2;
Standard wykończenia:
FUNDAMENT beton B25
PŁYTA FUNDAMETOWA beton B25
ŚCIANY pustak ceramiczny Porotherm 25
STROP żelbetowy
DACH konstrukcja drewniana impregnowana,ocieplony wełną mineralną 25 cm plus 5 cm
DACHÓWKA płaska firmy BRAAS
KOMINY okute blachą
- ogrzewanie podłogowe,
- piec dwufunkcyjny (w cenie).
OCIEPLENIE podłogi styropian 10 cm na parterze,
WYLEWKI cementowe
TYNKI silikonowe
ŚCIANKI działowe na piętrze CERAMIKA
ELEWACJA styropian 20 cm
STOLARKA OKIENNA: PCV, okna pięciokomorowe, trzyszybowe z ciepłą ramkę, antracyt/biały.
Skontaktuj się i poznaj szczegóły oferty!
Marta Urban
specjalista ds. nieruchomości BEST NEST
tel. 884 980 529
marta@bestnest.pl
Niniejsze ogłoszenie pełni funkcję informacyjną i nie stanowi oferty handlowej w rozumieniu przepisów Kodeksu Cywilnego.
Mieszkanie z widokiem na góry - ogródek
lokalizacja: Wilkowice
450 000,00 PLN
9 255,45 PLN
Dane szczegółowe
- Typ transakcji: sprzedaż
- Typ nieruchomości: Mieszkanie
- Lokalizacja: Wilkowice
- Powierzchnia:48,62 m2
- Liczba pokoi: 3
- Rok budowy: 2025
- Piętro: 0 z 1
- Numer oferty: 678924
- Cena: 450 000,00 PLN
- Cena za m2: 9 255,45 PLN
Opis nieruchomości
Adres strony www: https:// NULL
Kontakt do opiekuna:
Best Nest Łukasz Burda Jacek Przybyła S.C.