Twój drugi dom w Szczyrku - piękny widok na góry

lokalizacja: Szczyrk, Narciarska

1 059 000,00 PLN

19 981,13 PLN

Opis nieruchomości

APARTAMENTY FORT HILL - TWÓJ DRUGI DOM W SZCZYRKU!

Tęsknisz za chwilą wytchnienia na łonie natury? Pragniesz połączyć pracę
z przyjemnością? Masz dość rutyny i potrzebujesz oderwania od codzienności? Trafiłeś idealnie ponieważ mamy dla Ciebie niebanalną propozycję!

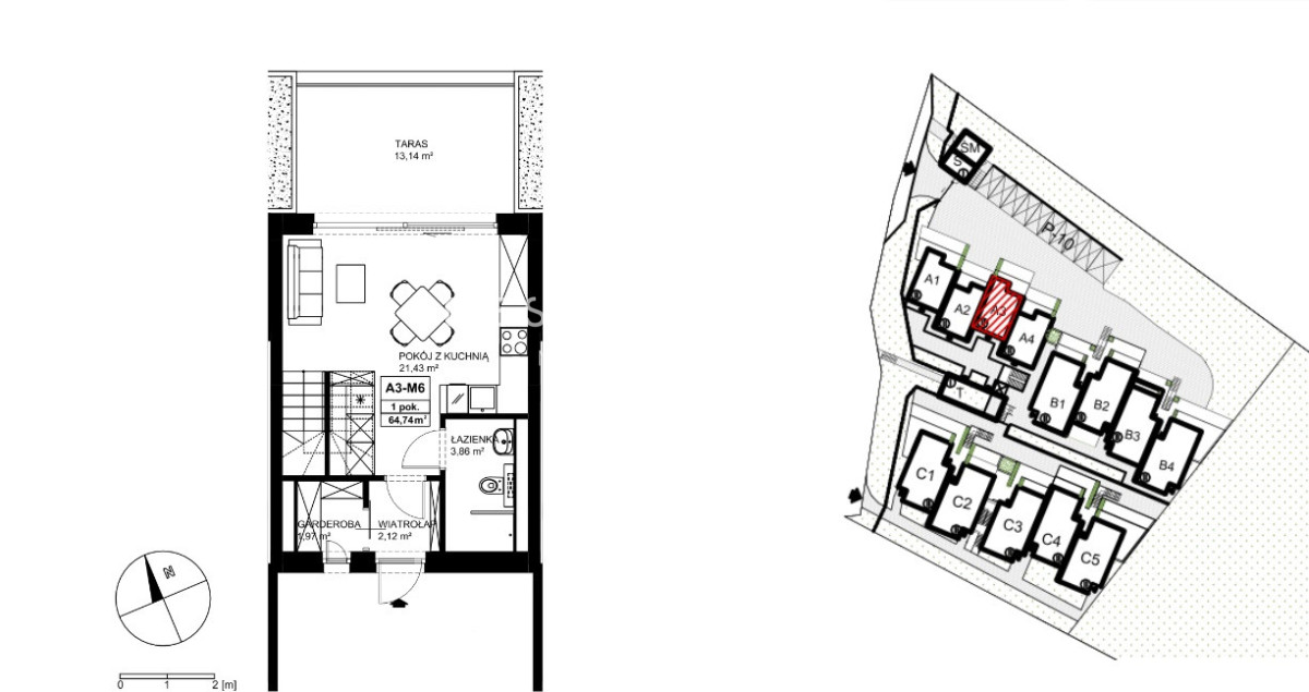
APARTAMENT A3 M6:

To wyjątkowy, nowoczesny, dwupoziomowy apartament z licznymi przeszkleniami. Posiada duży i przestronny taras (13,14 m2) oraz balkon (2,07 m2).

- powierzchnia apartamentu - 52,34 m2,
- posiada: pokój dzienny z aneksem kuchennym, przestronną antresolę, 2 garderoby łazienkę i WC,
- z balkonem 2,07 m2 i tarasem 13,14 m2,
- możliwość instalacji jacuzzi na tarasie lub wanny na antresoli,
- z myślą o użytku własnym lub przeznaczone na wynajem.

Cena dotyczy apartamentu w stanie deweloperskim.

Do ceny należy doliczyć:
- zadaszone miejsce postojowe pod budynkiem - 49 000 zł 
- dużą komórkę lokatorską 11,88 m2 - 37 000 zł 
- podatek VAT 8%

Bez prowizji dla biura - 0%
Bez PCC - 0%

To nowoczesna inwestycja w podwyższonym standardzie, nie tylko do wypoczynku, ale też do pracy zdalnej. W budowie zastosowano m.in. indywidualną rekuperację, strefowe ogrzewanie podłogowe, cyrkulację CWU, 3-szybkowe okna aluminiowe, światłowód, tarasy i elewacje wentylowane, balustrady ze szkła samonośnego.

Dodatkowymi udogodnieniami są: podgrzewany podjazd, winda terenowa.

Inwestycja posiada:
- tylko 26 apartamentów o podwyższonym standardzie,
- metraże o powierzchni od 40 - 82 m2,
- lokale mieszkalne z 8% VAT,
- strefę relaksu i SPA (sauny, grota solna, siłownia),
- możliwość instalacji prywatnego jacuzzi na tarasie,
- prywatny kompleks leśny z bezpośrednim wejściem na szlaki górskie,
- miejsca do odpoczynku z widokiem na góry (maty do jogi / medytacji),
- położona niedaleko najpopularniejszego ośrodka narciarskiego Szczyrk Mountain Resort (ok 150 m)
- liczne ścieżki rowerowe i szlaki górskie,

To apartamenty nie tylko do wypoczynku, ale też do pracy zdalnej. Unikalna lokalizacja pozwala, by poczuć kompletną ciszę, oddychać świeżym, górskim powietrzem i rozkoszować się przepięknymi widokami. Nawet chwilowy wyjazd pozwoli Ci zebrać myśli, pobudzi kreatywność i zachęci do podejmowania nowych wyzwań.

Przyjmij zaproszenie do wyjątkowych apartamentów Fort Hill w Szczyrku!
Przyjedź i napij się z nami kawy, a sam poczujesz, że to wyjątkowe miejsce!

Tutaj połączysz wygodę pracy zdanej z niezapomnianym widokiem i codziennymi aktywnościami.

W ofercie posiadamy również inne lokale z tej inwestycji.

Zapraszam na prezentację w dogodnym dla Państwa terminie.

Plany Nieruchomości

Kontakt do opiekuna:

Best Nest Łukasz Burda Jacek Przybyła S.C.

Izabela Tekielak
Nieprawidłowy adres E-mail
Mapa

Strona korzysta z plików cookie w celu realizacji usług zgodnie z Polityką prywatności. Możesz określić warunki przechowywania lub dostępu do cookie w Twojej przeglądarce.