3 pokoje | os. Karpackie| po generalnym remoncie

lokalizacja: Bielsko-Biała, Morskie Oko

549 000,00 PLN

8 714,29 PLN

Opis nieruchomości

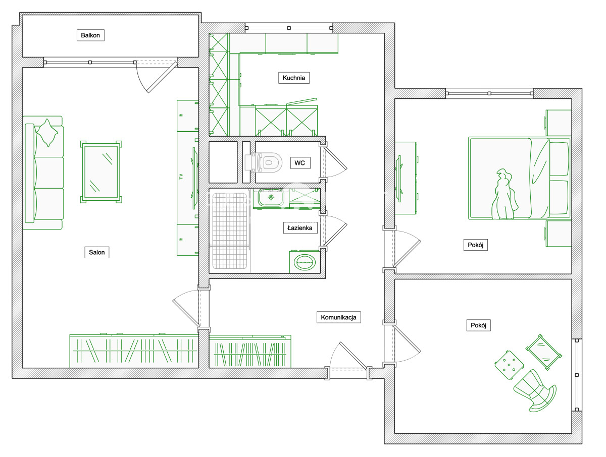
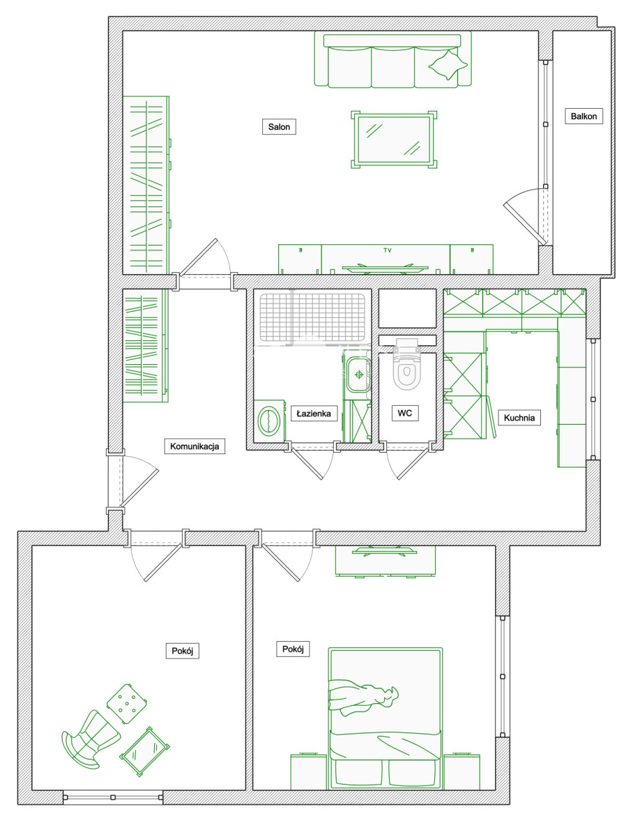
3 pokoje | 63 m² | po generalnym remoncie | balkon (południowo-zachodni) | os. Karpackie

Jeśli szukasz mieszkania, w którym możesz zamieszkać od razu - bez remontów, bez niespodzianek i bez odkładania życia „na później” - ta propozycja na osiedlu Karpackim może być dokładnie tym, czego potrzebujesz.

Mieszkanie ma 63 m², jest 3-pokojowe i rozkładowe, dzięki czemu każdy domownik ma swoją przestrzeń, a układ mieszkania po prostu dobrze działa na co dzień. Wnętrza są jasne - okna i balkon z ekspozycją południowo-zachodnią budują przyjemny klimat od pierwszego wejścia.

Najważniejsze atuty:
✔ Stan bardzo dobry - po generalnym remoncie, standard wykończenia wysoki
✔ 3 pokoje i funkcjonalny układ (pełna prywatność stref)
✔ Balkon z ekspozycją południowo-zachodnią
✔ Ogrzewanie miejskie - brak piecyka gazowego

Lokalizacja, która ułatwia życie.
Osiedle Karpackie to miejsce, gdzie codzienność jest prosta: w zasięgu krótkiego spaceru masz sklepy, usługi, szkołę, przedszkola, przystanek oraz tereny zielone — czyli dokładnie to, co doceniają rodziny i osoby, które nie chcą tracić czasu na dojazdy.

Chcesz zobaczyć, czy to miejsce „klika” od pierwszych minut? Zapraszam na prezentację.


Joanna Kowalska - Best Nest Nieruchomości
email: joanna@bestnest.pl
tel.: 733980529

Powyższy opis nie stanowi oferty handlowej w rozumieniu art. 66 Kodeksu Cywilnego, a dane w nim zawarte mają charakter informacyjny.

Plany Nieruchomości

Kontakt do opiekuna:

Best Nest Łukasz Burda Jacek Przybyła S.C.

Joanna Kowalska
Nieprawidłowy adres E-mail
Mapa

Strona korzysta z plików cookie w celu realizacji usług zgodnie z Polityką prywatności. Możesz określić warunki przechowywania lub dostępu do cookie w Twojej przeglądarce.