Wyobraź sobie miejsce, do którego wracasz z przyjemnością.
Cisza, zieleń, poranna kawa na własnym tarasie i przestrzeń, w której naprawdę można odetchnąć.
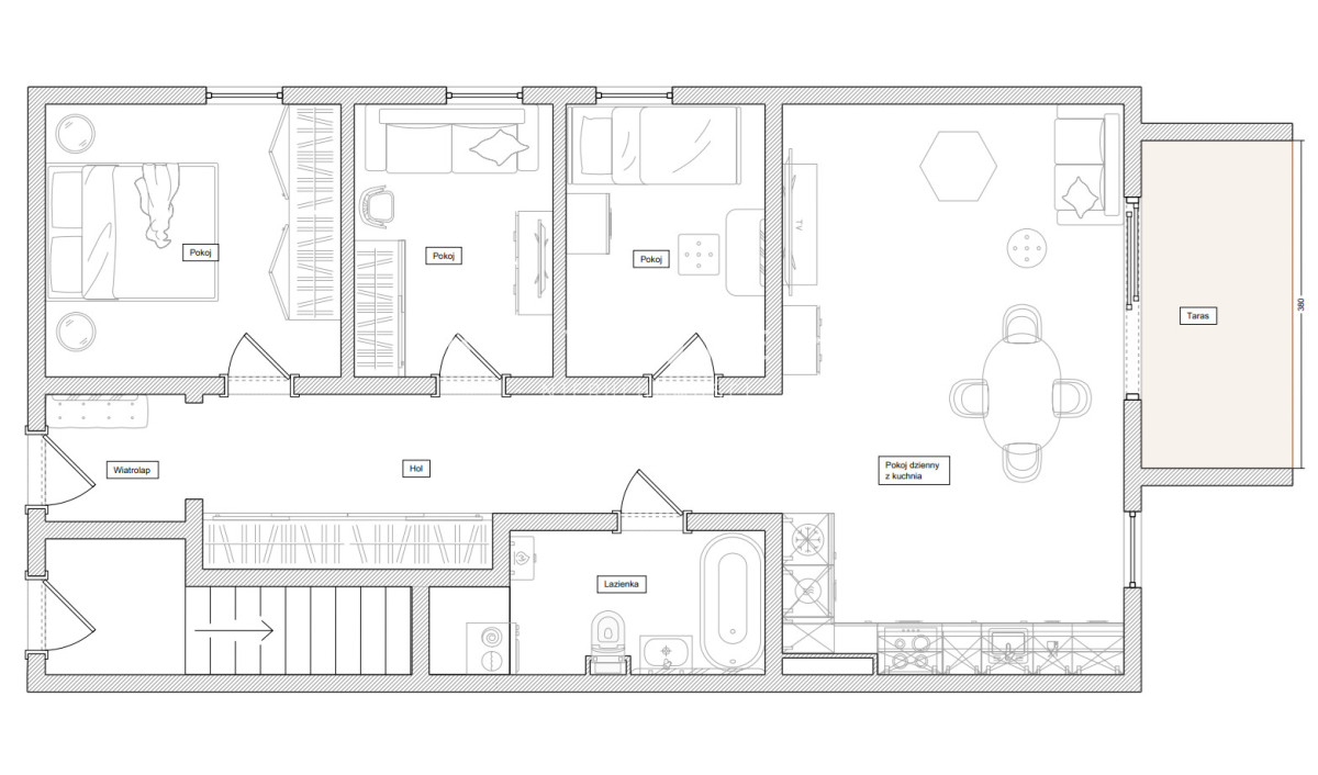
To mieszkanie położone w nowoczesnym, kameralnym budynku przy ul. Krakusa w Bielsku-Białej daje poczucie komfortu domu, zachowując wygodę mieszkania.
Dlaczego to miejsce działa:
✔ prywatny ogródek i taras - codzienna przestrzeń do odpoczynku, nie tylko dodatek
✔ funkcjonalny układ: salon + 3 pokoje - wygoda dla pary, rodziny lub pracy zdalnej
✔ nowoczesny standard - gotowe do zamieszkania - bez remontów i dodatkowych kosztów
To propozycja dla osób, które nie szukają tylko metrażu, ale lepszej jakości życia.
Jeśli chcesz poczuć tę przestrzeń na żywo - zapraszam do kontaktu i na prezentację.
Kontakt:
Przemysław Kowalski - Best Nest Nieruchomości
tel. 570 980 528
✉ przemyslaw@bestnest.pl
Powyższy opis nie stanowi oferty handlowej w rozumieniu art. 66 Kodeksu Cywilnego, a dane w nim zawarte mają charakter informacyjny.
Spokój, przestrzeń i własny ogródek ul. Krakusa
lokalizacja: Bielsko-Biała, Krakusa
799 000,00 PLN
11 370,43 PLN
Dane szczegółowe
- Typ transakcji: sprzedaż
- Typ nieruchomości: Mieszkanie
- Lokalizacja: Bielsko-Biała, Krakusa
- Powierzchnia:70,27 m2
- Liczba pokoi: 4
- Rok budowy: 2020
- Piętro: 0 z 1
- Numer oferty: 916084
- Cena: 799 000,00 PLN
- Cena za m2: 11 370,43 PLN
Opis nieruchomości
Kontakt do opiekuna:
Best Nest Łukasz Burda Jacek Przybyła S.C.