Tylko w Best Nest Nieruchomości do sprzedania budynek usługowo-handlowy w Bielsku-Białej, zlokalizowany w bliskim sąsiedztwie CH. Gemini.
Dwupiętrowy obiekt posadowiony jest na działce z dostępem na drogę publiczną. Teren jest płaski, ogrodzony.
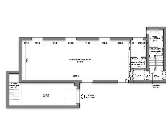
Nieruchomość o łącznej powierzchni ok. 400 m2 składa sie z :
• Parter: pomieszczenie usługowe, pomieszczenia socjalne z WC, magazyn/garaż, biura, korytarz, klatka schodowa.
• Piętro: pomieszczenie usługowe, pomieszczenie socjalne, pomieszczenie produkcyjne.
Podany metraż to powierzchnia przybliżona, ponieważ jesteśmy w trakcie podziału budynku.
Opis nieruchomości :
Budynek w bardzo dobrym stanie technicznym i wizualnym, na bieżąco modernizowany. Obiekt posiada funkcjonalny układ pomieszczeń, co umożliwia jego adaptację do różnorodnych form działalności: biurowej, usługowej, magazynowej, a także medycznej.
Dane techniczne :
Ogrzewanie gazowe.
Budynek jest w pełni uzbrojony - podłączony do miejskich sieci: wodociągowej, kanalizacji sanitarnej i deszczowej oraz elektrycznej.
Konstrukcja budynku: ławy żelbetowe, ściany fundamentowe z betonu ocieplane, ściany parteru i piętra wykonane z pustaków PGS, ocieplone styropianem 10 cm, stropy i schody żelbetowe.
Dach płaski, konstrukcji drewnianej, ocieplony wełną mineralną, pokrycie z blachy.
Okna PCV. Budynek docieplony jest styropianem + tynk akrylowy.
Obecnie część sprzedawanego budynku jest wynajmowana - możliwość przejęcia umowy.
Zysk ok. 10 tys. brutto plus media.
Z racji na bardzo atrakcyjną lokalizację i charakterystykę nieruchomości, obiekt idealnie nadaje się na siedzibę firmy bądź wynajem.
Zapraszam do kontaktu
Łukasz Skowron
tel. 570 828 150
Best Nest Nieruchomości
W ramach usługi pośrednictwa pobieramy wynagrodzenie w formie prowizji. Bierzemy odpowiedzialność za bezpieczeństwo transakcji, doradzamy, pomagamy w załatwianiu wszelkich formalności z zakupem nieruchomości.
Powyższy opis nie stanowi oferty handlowej w rozumieniu art. 66 Kodeksu Cywilnego, a dane w nim zawarte mają charakter informacyjny.
Lokal usługowo-handlowy | ok. CH. Gemini
lokalizacja: Bielsko-Biała, gen. Józefa Kustronia
1 720 000,00 PLN
4 300,00 PLN
Dane szczegółowe
- Typ transakcji: sprzedaż
- Typ nieruchomości: Komercyjny
- Lokalizacja: Bielsko-Biała, gen. Józefa Kustronia
- Powierzchnia:400 m2
- Rok budowy: 2006
- Numer oferty: 962002
- Cena: 1 720 000,00 PLN
- Cena za m2: 4 300,00 PLN
Opis nieruchomości
Kontakt do opiekuna:
Best Nest Łukasz Burda Jacek Przybyła S.C.