Tylko w Best Nest Nieruchomości do sprzedania budynek magazynowo-biurowy w Bielsku-Białej, zlokalizowany w bliskim sąsiedztwie drogi ekspresowej S1.
Dwupiętrowy obiekt posadowiony jest na dużej wybrukowanej działce o powierzchni 2006 m2 z bezpośrednim wjazdem na drogę publiczną. Do budynku przynależą liczne miejsca postojowe, teren jest płaski, monitorowany i ogrodzony.
Nieruchomość o łącznej powierzchni użytkowej 521,60 m2 składa sie z :
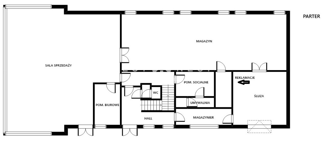
• Parter (235 m²): sala sprzedaży, pomieszczenia socjalne z WC, magazyn, śluza towarowa, pomieszczenie porządkowe, korytarz, klatka schodowa.
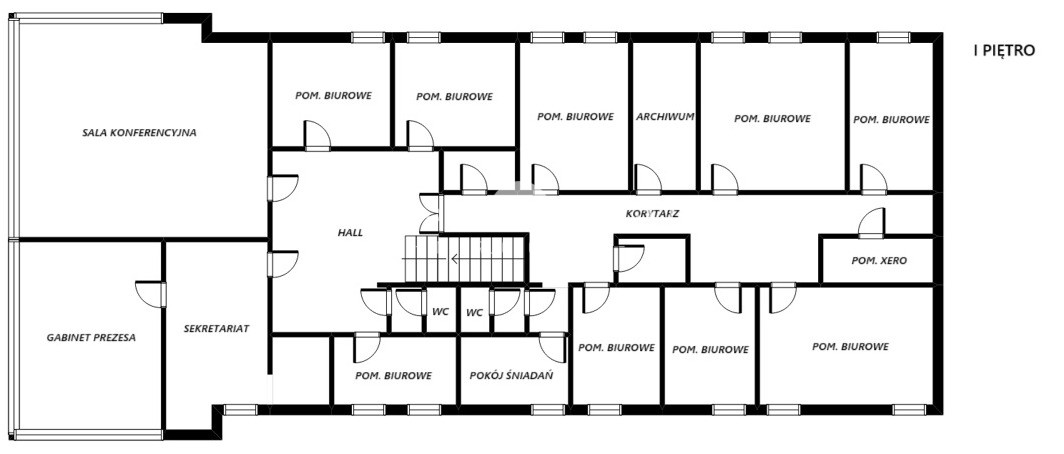
• Piętro (286,6 m²): sala konferencyjna, gabinet prezesa, sekretariat z zapleczem kuchennym, 11 biur, pomieszczenia socjalne, WC damskie i męskie, pomieszczenie porządkowe.
Opis nieruchomości :
Budynek w bardzo dobrym stanie technicznym i wizualnym, wykończony w wysokim standardzie. Obiekt posiada funkcjonalny układ pomieszczeń, co umożliwia jego adaptację do różnorodnych form działalności: biurowej, usługowej, magazynowej, a także produkcyjnej.
Dane techniczne :
Ogrzewanie olejowe zapewnia system powietrzny marki Miller, który pełni jednocześnie funkcję wentylacji, klimatyzacji i nawilżania powietrza.
Budynek jest w pełni uzbrojony - podłączony do miejskich sieci: wodociągowej, kanalizacji sanitarnej i deszczowej oraz elektrycznej.
Konstrukcja budynku jest szkieletowa, murowana z elementami żelbetowymi i stalowymi, z nowoczesną fasadą szklaną.
Dach płaski, wykonany z płyt korytkowych pokryty papą.
Okna PCV. Budynek docieplony jest styropianem + tynk akrylowy.
Z racji na bardzo atrakcyjną lokalizację i charakterystykę nieruchomości, obiekt idealnie nadaje się na siedzibę firmy bądź wynajem,
Podana w ogłoszeniu cena jest kwotą netto
W ramach usługi pośrednictwa pobieramy wynagrodzenie w formie prowizji,
odpowiadamy za komfort przy Państwa transakcji oraz bezpieczeństwo na każdym
etapie procesu sprzedaży/kupna. Zajmujemy się pomocą w dopełnieniu
formalności wiążących się ze zbyciem lub nabyciem nieruchomości.
Budynek magazynowo-biurowy | Wapienica | trasa S1
lokalizacja: Bielsko-Biała
3 250 000,00 PLN
6 230,83 PLN
Dane szczegółowe
- Typ transakcji: sprzedaż
- Typ nieruchomości: Komercyjny
- Lokalizacja: Bielsko-Biała Wapienica
- Powierzchnia:521,60 m2
- Rok budowy: 2006
- Piętro: 0 z 1
-
Powierzchnia działki:
2 006 m2
- Numer oferty: 805571
- Cena: 3 250 000,00 PLN
- Cena za m2: 6 230,83 PLN
Opis nieruchomości
Kontakt do opiekuna:
Best Nest Łukasz Burda Jacek Przybyła S.C.