Tylko w Best Nest
Kupujący nie płaci prowizji ani podatku PCC
Mamy przyjemność zaprezentować drugi etap inwestycji Rezydencje pod lasem, składający się z dziesięciu domów w zabudowie bliźniaczej położonych w Kobiórze przy ul. Wrzosowej. Do każdego z lokali przynależy działka o powierzchni ok 350m2, na której będzie wybrukowany podjazd do garażu oraz taras.
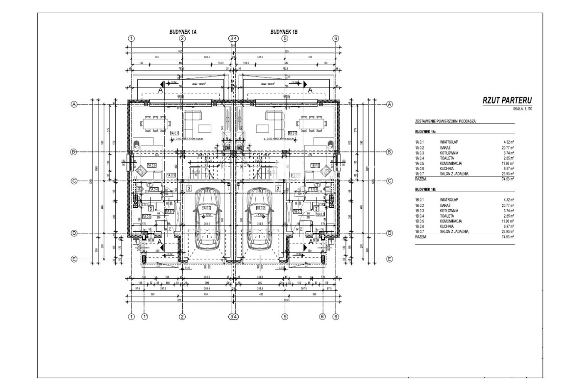
Parter:
- wiatrołap 4,32m2
- garaż 20,77m2
- kotłownia 3,74m2
- toaleta 2,85m2
- komunikacja 11,95m2
- kuchnia 6,97m2
- salon z jadalnią 23,93m2
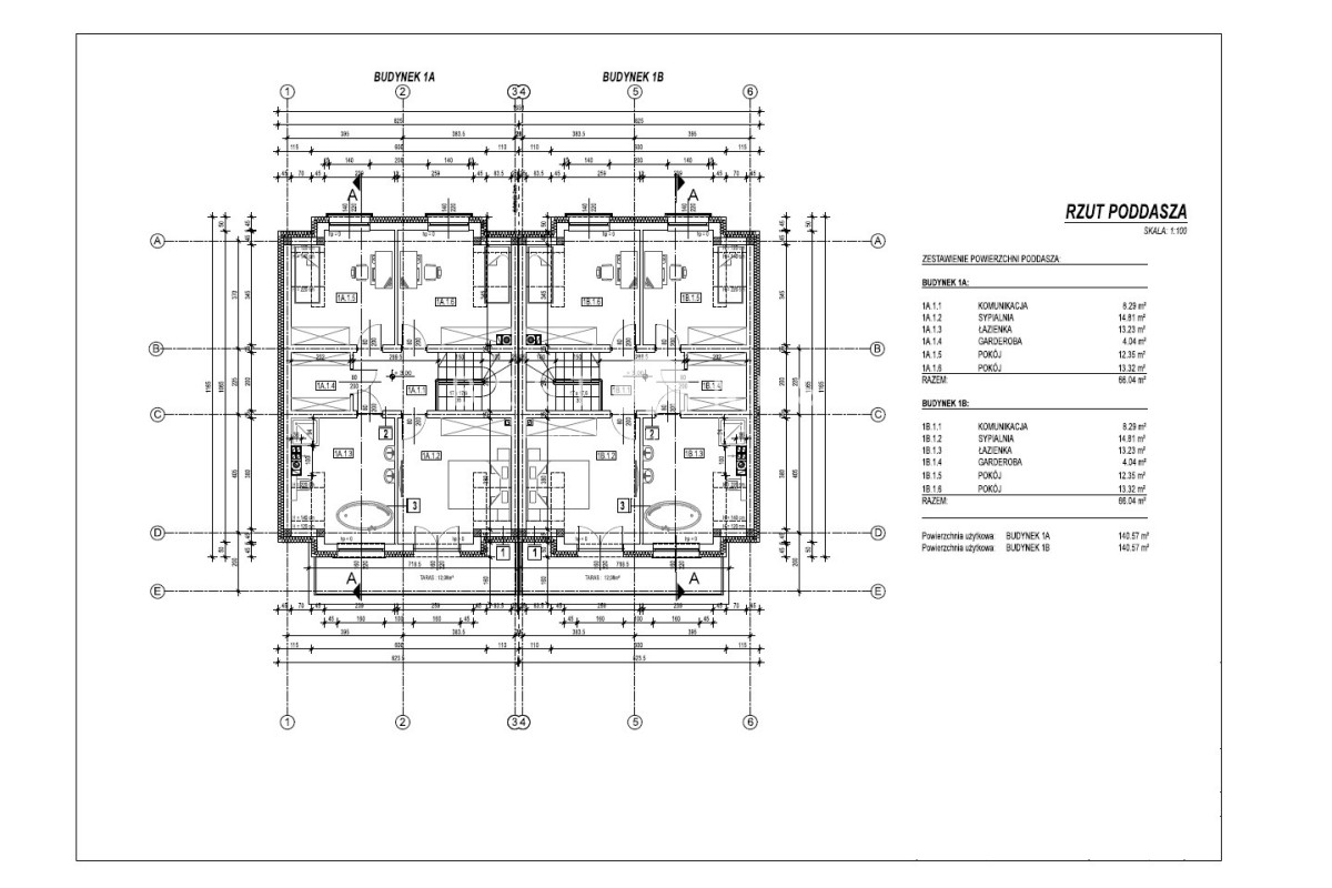
I piętro:
- komunikacja 8,29m2
- sypialnia 14,81m2
- łazienka 13,23m2
- garderoba 4,04m2
- pokój 12,35m2
- pokój 13,32m2
Standard wykończenia:
- ściany zewnętrzne wykonane z Wienerberger Porotherm 25cm
- strop TERIVA
- dachówka ceramiczna Wienerberger Koramic Orea 9
- ogrzewanie podłogowe z wylewką anhydrytową
- schody na piętro żelbetowe
- okna PCV na profilu Termo Elegant 76MD, 3 szybowe w kolorze
antracyt (z obu stron)
- okno w salonie aluminiowe na profilu Aluprof Mb 77 HS, 3 szybowe
w kolorze antracyt (z obu stron)
- rolety zewnętrzne elektryczne Aluprof antracyt
- elektryczna brama garażowa Wiśniowski UniPro antracyt
- pompa ciepła Panasonic
- fotowoltaika
Zalety Inwestycji:
- atrakcyjna lokalizacja
- funkcjonalny układ pomieszczeń
- duża działka
- wysoka jakość materiałów
Oferta zawiera wizualizację przedstawiające w jaki sposób może zostać wykończone wnętrze.
Jeśli zainteresowała Cię ta oferta to zapraszam do kontaktu oraz na prezentację.
Bierzemy odpowiedzialność za bezpieczeństwo transakcji, doradzamy, pomagamy w załatwianiu wszelkich formalności z zakupem nieruchomości. Skontaktujemy Państwa z ekspertem finansowym, który pomoże wybrać najkorzystniejszy kredyt hipoteczny.
Powyższy opis nie stanowi oferty handlowej w rozumieniu art. 66 Kodeksu Cywilnego, a dane w nim zawarte mają charakter informacyjny.
Nowoczesny dom z garażem w zabudowie bliźniaczej
lokalizacja: Kobiór
979 000,00 PLN
6 964,50 PLN
Dane szczegółowe
- Typ transakcji: sprzedaż
- Typ nieruchomości: Dom
- Lokalizacja: Kobiór
- Powierzchnia:140,57 m2
- Liczba pokoi: 4
- Rok budowy: 2025
- Liczba pięter: 1
-
Powierzchnia działki:
350 m2
- Numer oferty: 165430
- Cena: 979 000,00 PLN
- Cena za m2: 6 964,50 PLN
Opis nieruchomości
Film o nieruchomości
Kontakt do opiekuna:
Best Nest Łukasz Burda Jacek Przybyła S.C.