Tylko w Best Nest
Oferujemy na sprzedaż przestronny budynek o łącznej powierzchni użytkowej 459,46 m², położony na działce o powierzchni 725 m². Nieruchomość stanowi doskonałą propozycję zarówno dla dużej rodziny, jak i inwestora szukającego miejsca pod działalność gospodarczą lub wynajem.
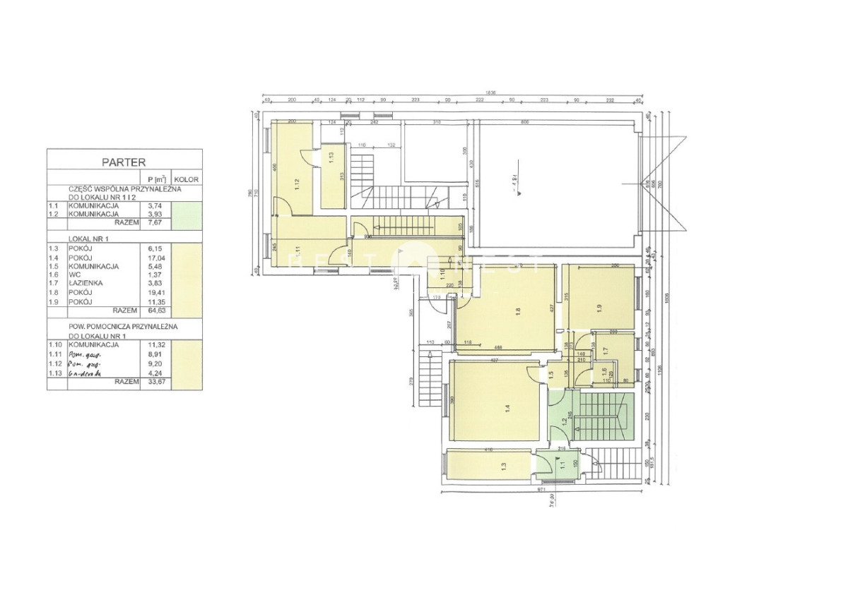
Układ nieruchomości:
Budynek składa się z trzech niezależnych lokali mieszkalnych:
Lokal 1: 64,63 m² + pomieszczenia przynależne 114,83 m²
Lokal 2: 55,25 m² + pomieszczenia przynależne 8,34 m²
Lokal 3: 118,52 m² + pomieszczenia przynależne 87,05 m²
Dodatkowo lokale 1 i 2 posiadają udział w powierzchni wspólnej wynoszącej 20,84 m².
Każdy lokal posiada odrębną księgę wieczystą oraz niezależne media, co znacząco zwiększa elastyczność użytkowania lub sprzedaży. Istnieje możliwość zakupu połowy budynku.
Dodatkowe atuty:
Duży garaż na 3 samochody (63,37 m²) - idealny pod działalność gospodarczą
Drugi garaż o powierzchni 22,38 m²
Pokój rekreacyjny wyposażony w saunę, orbitrek, piłkarzyki oraz prysznic
Wydzielone biuro
Klimatyzacja
Ogrzewanie: piece gazowe dwufunkcyjne na każdy lokal osobny
Budynek po remoncie instalacji, ocieplony, z oknami PCV
Stan i historia budynku:
Budynek wybudowany w latach 60., rozbudowany w latach 90.
Regularnie modernizowany, gotowy do zamieszkania lub dalszej adaptacji
Potencjał inwestycyjny:
Nieruchomość świetnie sprawdzi się jako:
dom dla wielopokoleniowej rodziny,
siedziba firmy z zapleczem mieszkalnym,
inwestycja pod wynajem (trzy niezależne lokale),
obiekt łączący funkcję mieszkalną i usługową.
Rzuty poszczególnych kondygnacji dostępne są w galerii zdjęć.
Jeśli zainteresowała Cię ta oferta to zapraszamy do kontaktu oraz na prezentację.
Bierzemy odpowiedzialność za bezpieczeństwo transakcji, doradzamy, pomagamy w załatwianiu wszelkich formalności z zakupem nieruchomości. Skontaktujemy Państwa z ekspertem finansowym, który pomoże wybrać najkorzystniejszy kredyt hipoteczny. Powyższy opis nie stanowi oferty handlowej w rozumieniu art. 66 Kodeksu Cywilnego, a dane w nim zawarte mają charakter informacyjny.
Budynek z trzema lokalami z dużym potencjałem
lokalizacja: Czechowice-Dziedzice
1 700 000,00 PLN
3 700,00 PLN
Dane szczegółowe
- Typ transakcji: sprzedaż
- Typ nieruchomości: Dom
- Lokalizacja: Czechowice-Dziedzice
- Powierzchnia:459,46 m2
- Liczba pokoi: 11
- Rok budowy: 1960
- Liczba pięter: 1
-
Powierzchnia działki:
725 m2
- Numer oferty: 414092
- Cena: 1 700 000,00 PLN
- Cena za m2: 3 700,00 PLN
Opis nieruchomości
Kontakt do opiekuna:
Best Nest Łukasz Burda Jacek Przybyła S.C.