Tylko w Best Nest
Na sprzedaż kamienica o powierzchni 323 m², zlokalizowana w prestiżowej i dobrze skomunikowanej dzielnicy Bielska-Białej, przy ul. Młyńskiej. Budynek doskonale nadaje się zarówno na działalność komercyjną, jak i inwestycję pod wynajem, dzięki elastyczności w aranżacji przestrzeni.
Parametry nieruchomości:
- Powierzchnia całkowita: 323 m²
- Duża piwnica
- Lokalizacja: Bielsko-Biała, ul. Młyńska
- Stan: gotowa do użytkowania z możliwością rozbudowy i adaptacji
- Ostatnie zdjęcie prezentuje potencjalne możliwości przebudowy piętra i poddasze na 7 mieszkań
Opis obiektu:
Parter:
Na parterze znajduje się w pełni funkcjonujący salon kosmetyczny z przestronnymi pomieszczeniami, które idealnie nadają się do prowadzenia działalności usługowej. Obecny najemca, który nieprzerwanie wynajmuje lokal od 11 lat, chętnie kontynuowałby dalszy najem. Istnieje również możliwość przekształcenia parteru na dwa lokale użytkowe.
Piętro:
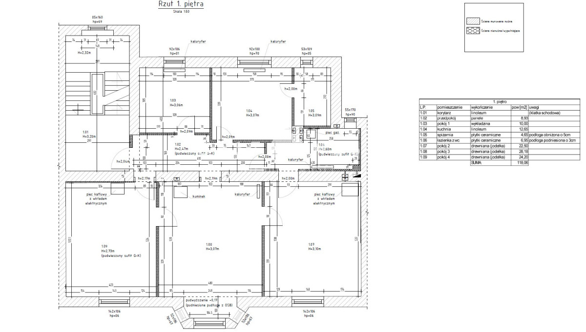
Na pierwszym piętrze znajduje się przestronne mieszkanie z 4 pokojami, które może być zamieszkałe lub wykorzystane do celów wynajmu. Istnieje również możliwość podzielenia piętra na cztery mniejsze mieszkania, co zwiększy możliwości generowania dochodu.
Poddasze:
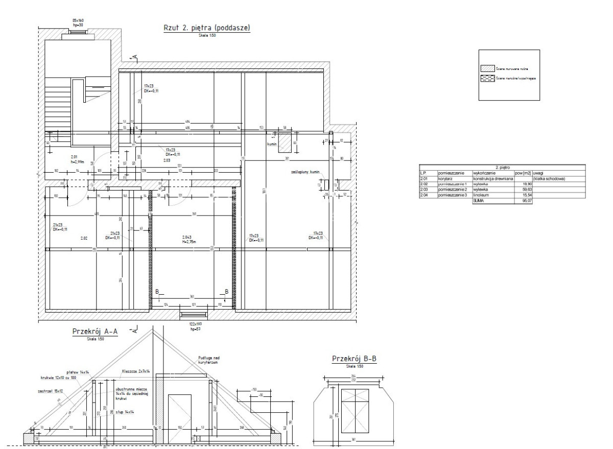
Poddasze jest przestronne i gotowe do adaptacji. Można je przekształcić w dwa dodatkowe mieszkania, co jeszcze bardziej podnosi atrakcyjność nieruchomości jako inwestycji.
Możliwości rozbudowy:
Budynek daje szerokie możliwości aranżacyjne i jest idealnym rozwiązaniem dla inwestora poszukującego nieruchomości z potencjałem rozwoju. Możliwość przekształcenia parteru w lokale użytkowe oraz podziału piętra i poddasza na mniejsze mieszkania pozwala na dostosowanie przestrzeni do indywidualnych potrzeb. Takie rozwiązanie zapewnia wysoką rentowność inwestycji, szczególnie w tej popularnej lokalizacji.
Lokalizacja:
Ścisłe centrum miasta, doskonała komunikacja z innymi częściami Bielska-Białej oraz bliskość do ważnych punktów usługowych, handlowych i edukacyjnych.
Jeśli zainteresowała Cię ta oferta to zapraszam do kontaktu oraz na prezentację.
Bierzemy odpowiedzialność za bezpieczeństwo transakcji, doradzamy, pomagamy w załatwianiu wszelkich formalności z zakupem nieruchomości. Skontaktujemy Państwa z ekspertem finansowym, który pomoże wybrać najkorzystniejszy kredyt hipoteczny.
Powyższy opis nie stanowi oferty handlowej w rozumieniu art. 66 Kodeksu Cywilnego, a dane w nim zawarte mają charakter informacyjny.
Inwestycyjna kamienica w centrum miasta
lokalizacja: Bielsko-Biała, Młyńska
1 199 000,00 PLN
3 712,07 PLN
Dane szczegółowe
- Typ transakcji: sprzedaż
- Typ nieruchomości: Dom
- Lokalizacja: Bielsko-Biała, Młyńska
- Powierzchnia:323 m2
- Liczba pokoi: 12
- Liczba pięter: 2
-
Powierzchnia działki:
534 m2
- Numer oferty: 811525
- Cena: 1 199 000,00 PLN
- Cena za m2: 3 712,07 PLN
Opis nieruchomości
Film o nieruchomości
Adres strony www: https:// NULL
Kontakt do opiekuna:
Best Nest Łukasz Burda Jacek Przybyła S.C.